“
ЖК Клевер
”
8 (4942) 54-28-28
На главную страницу
0
Избранное
Выбрать квартиру
Нежилая недвижимость
Ипотека
Ход строительства
Контакты
0
На главную страницу
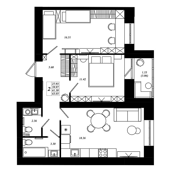
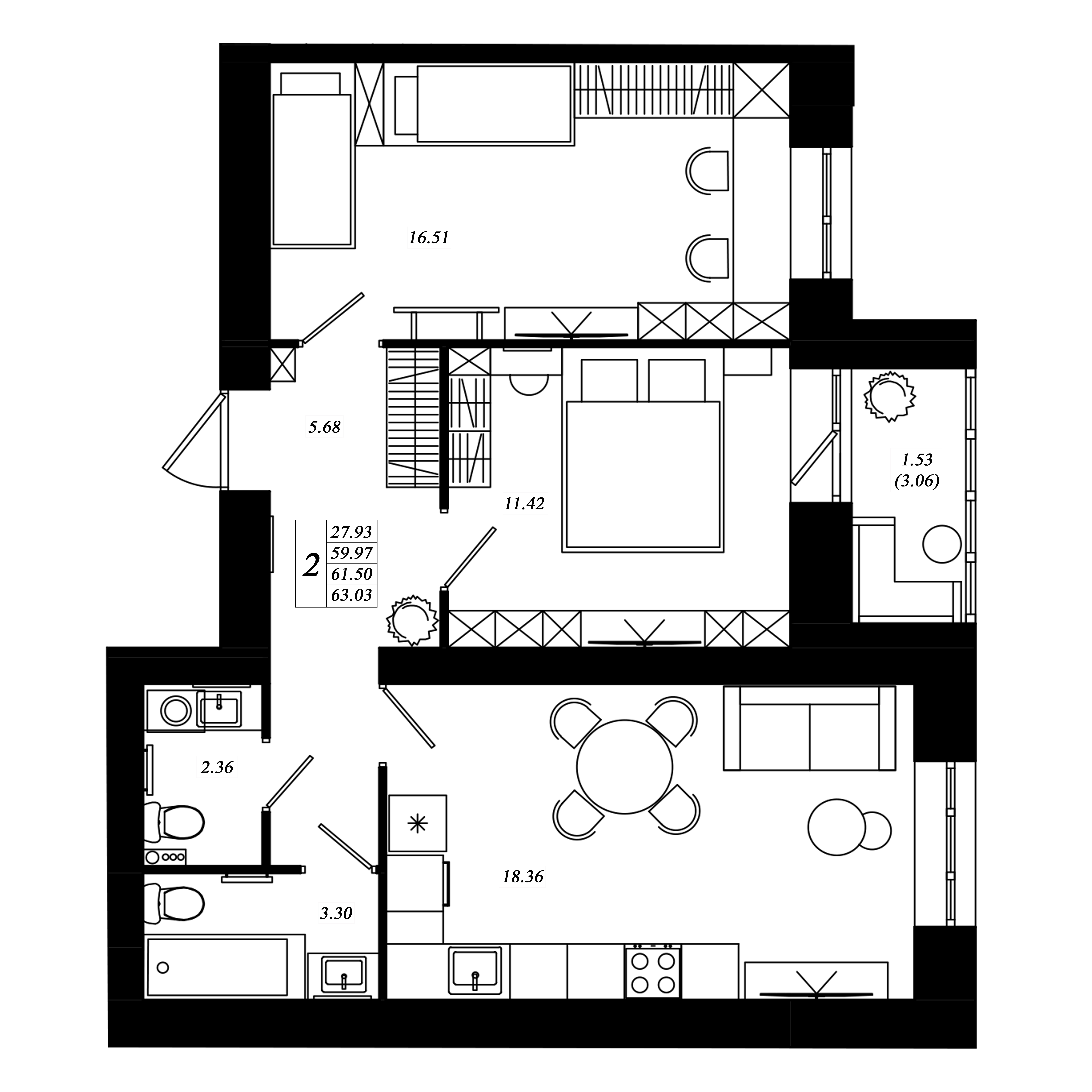
2к-кв 61.5
Планировка квартиры
Отправить
по email
Распечатать
планировку
Смотреть все
планировки
Характеристики планировки
ЖК «ЖК Клевер»
Никитская, 57а
Костромская область, Кострома, Никитская улица
Количество комнат
2
Общая площадь
61,50 кв.м.
Номер квартиры
3 — 56
План квартиры
Загрузить
Площадь кухни
18,36 кв.м.
Этаж
1 — 8
Цена за квартиру
7 380 000 — 7 995 000 руб.
Свободных квартир
6 из 8
2к-кв 61.5 на шахматке
в продаже
выбранные
продано
Рекомендуем
Планировки с такой же площадью и количеством комнат
2к-кв 57.98
Общая площадь
57,98 кв.м.
Цена
от 6 957 600 руб.
В продаже
7 квартир