“
ЖК Клевер
”
8 (4942) 54-28-28
На главную страницу
0
Избранное
Выбрать квартиру
Нежилая недвижимость
Ипотека
Ход строительства
Контакты
0
На главную страницу
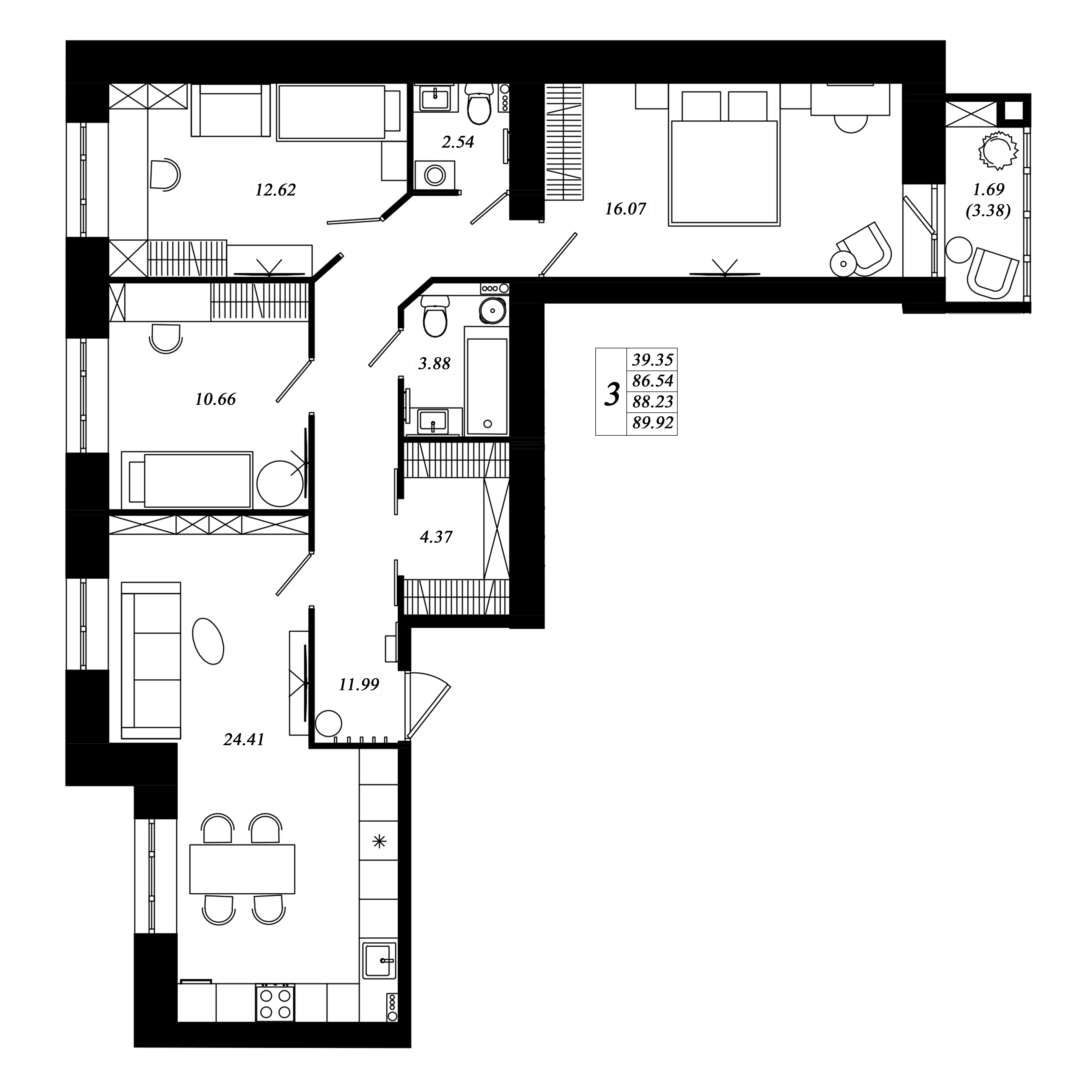
3к-кв 88.23
Планировка квартиры
Отправить
по email
Распечатать
планировку
Смотреть все
планировки
Характеристики планировки
ЖК «ЖК Клевер»
Никитская, 57а
Костромская область, Кострома, Никитская улица
Количество комнат
3
Общая площадь
88,23 кв.м.
Номер квартиры
6 — 54
План квартиры
Загрузить
Площадь кухни
24,41 кв.м.
Этаж
2 — 8
Цена за квартиру
11 028 750 руб.
Свободных квартир
6 из 7
3к-кв 88.23 на шахматке
в продаже
выбранные
продано